ORC F2020 I WEEK ONE I THE INTRO
- Kristian Berryhill

- Oct 8, 2020
- 3 min read
Updated: Oct 9, 2020
Hey Y'all!
This week officially kicked off the beginning of the Fall 2020 One Room Challenge for Featured Designers and Guest Participants. It just so happens to be the final week of sheetrock here at Bonnie Manor, perfect timing! So here I am.
The One Room Challenge is a home makeover challenge where participants take on one room to transform over the span of 6 weeks alongside many others, it is a great opportunity to finally get that project done with amazing support every step of the way. A huge thanks to Linda, @betterhomesandgardens, and @highpointmarket for continuing to put this on for us all, especially this year.
If we haven't "met" before now, my name is Kristian Berryhill and I am from the small town of Eupora, Mississippi where I am a designer at Belinda Stewart Architects and just started restoring my own historic house that I named "Bonnie Manor". You can get to know me more here and you can get to know Bonnie more here.

If you have been following along you know that I raised the question of which room you thought I would be making over for the ORC, we have quite a lot to do here, actually every room here. The most pressing rooms, though, are the Upstairs Bathroom, Living Room, and Kitchen. Spoiler: I will not be trying to tackle a kitchen within 6 weeks. I don't even like to cook. The Upstairs Bathroom is the most necessary for us to be able to really live here. The Living Room would make living much nicer, especially when the holidays are here along with family, and it can be a quick Phase One Flip for now, so why wait? Yes, I am taking on them both!
But also, the Foyer. Did I even mention that one? Nope. I realized that when the Living Room progresses, it leaves the Foyer empty for opportunity - right now it is serving as a temp living space for our furniture and a place to rest while we are working. Sooo why not spruce that up a bit too? Come Christmas I know I will be glad I did when we put the tree up there.
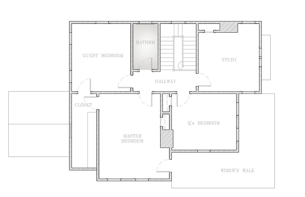
Below is Bonnie Manor as she stands today: Demo and New Walls have been completed. I won't go deep into that whole process here, but this gives you a (never before seen) look at how Bonnie is laid out and how the Foyer and Living Room open right up to each other, which made sense to do them both! The ORC rooms have been shaded for reference.
DOWNSTAIRS:

UPSTAIRS:

While the Foyer and Living Room have not changed much since this past July when we closed and immediately started demo, the Upstairs bathroom has changed dramatically!
FOYER - BEFORE:
LIVING ROOM - BEFORE:
...so far we have only removed the two layers of carpet and padding, the last padding leaving a black residue/glue on the original hardwood floors that can only be removed by sanding and refinishing (we tried a few cleaners that were unsuccessful); which would take a lot of work so that will be done in Phase Two sometime next year. When we refinish the floors in this room, we will also refinish the floors in the connecting Foyer and Dining Room as the run flows together and there is not a good start/stop place = a lot of work.
UPSTAIRS BATHROOM BEFORE:
...so far we have completely demo'd this room down to the bones, revealing a covered window (wtf), no remaining original flooring, and the original paint colors on the crumbling plaster that had to go. Today this room is actually having sheetrock installed!
I can not wait to show you the progress in here next week! (catch sneak peaks in Instagram stories if you are as impatient as I am). The difference in uncovering the window and fresh walls is A M A Z I N G!
Next week I will be revealing the Designs (like which color blue I settled on for the Living Room) and taking you into my deep dive of research and planning for each room, and of course, progress!
Make sure you hop over to see the Featured Designers and other Guest Participants! Good luck, y'all!
-KB

































Comments